Онлайн курс в записи «Разработка раздела ЭОМ в Autodesk Revit»
|
Длительность |
Дата проведения |
Место проведения |
Преподаватель |
|---|
Курс предназначен для практикующих специалистов по разделу ЭОМ; студентов и преподавателей профильных направлений ВУЗов; BIM менеджеров и координаторов.
Чему вы научитесь на курсе:
- Моделировать различные системы электроснабжения и электроосвещения в Autodesk Revit;
- Пользоваться расчетными возможностями Autodesk Revit;
- Проверять модели на ошибки и исправлять их;
- Делать проверки на пересечения;
- Оформлять документацию и готовить спецификации;
- Познакомитесь с методологией BIM проектирования и изучите основные термины и определения.
Что вы получаете:
- Навыки и знания, востребованные на рынке;
- Живое сопровождение по ходу обучения;
- Альбом документации и BIM модель для портфолио;
- Возможность потренироваться на примере реального жилого здания с автостоянкой;
- Необходимые семейства и шаблон для работы, а также бессрочный доступ к курсу.
Программа курса
Вступительная часть
Подготовка модели
Моделирование систем ЭОМ жилого здания
Моделирование систем ЭОМ коммерческих помещений и МОП
Моделирование систем ЭОМ автостоянки и тех. помещений стилобата. Работа со смежными разделами
Молниезащита и заземление
Оформление документации
Печать проекта
Совместная работа над одним файлом
Заключение




- Подготовка интерфейса программы;
- Системные требования к Revit;
- Горячие клавиши.
Подготовка модели
- Шаблоны проекта;
- Обзор интерфейса;
- Виды;
- Нюансы сохранения проекта. Важное о версиях Revit;
- Работа с окнами. Закрытие проекта;
- Автоматизация в Revit;
- Система координат. Точка съемки и точка внутреннего начала;
- Уровни и сетки;
- Связь с подложками на основе Revit. Подгрузка подложек АР;
- Создание уровней и сеток осей. Создание планов этажей;
- Сохранение проекта. Настройка секущих диапазонов;
- Расстановка пространств и создание экспликаций;
- Семейства, виды семейств, редактор семейств, типы;
- Инструмент "Настройки электротехнических систем".
Моделирование систем ЭОМ жилого здания
- Расстановка розеток по квартирам;
- Расстановка квартирных и этажных щитов;
- Создание и редактирование электрических цепей для квартир;
- Создание и редактирование 2D проводок для квартир;
- Создание и редактирование электрических цепей и 2D проводок для коридоров;
- Анализ и проверка созданных систем;
- Подготовка семейства марки для расчета освещенности;
- Загрузка семейств. Работа с рабочей плоскостью;
- Объяснение принципов расчета освещенности в Revit;
- Расстановка осветительных приборов в квартире;
- Расстановка осветительных приборов рабочего и аварийного освещения в коридоре;
- Расстановка выключателей в квартирах;
- Создание и редактирование электрических цепей;
- Создание 2D проводок;
- Добавление КУП;
- Копирование типовых этажей.
Моделирование систем ЭОМ коммерческих помещений и МОП
- Расстановка щитов коммерческих помещений 1-го этажа;
- Расстановка ВРУ;
- Создание и электрических цепей;
- Создание и редактирование 3D проводок;
- Редактирование электрических цепей;
- Расстановка щитов коммерческих помещений 2-го этажа. Создание и редактирование 3D проводок;
- Расстановка щитов коммерческих помещений 2-го этажа. Создание цепей;
- Расстановка осветительных приборов рабочего и аварийного освещения МОП;
- Расстановка выключателей рабочего и аварийного освещения МОП;
- Создание и редактирование электрических цепей;
- Создание своих типов гофрированной трубы;
- Создание и редактирование 3D проводок РО МОП;
- Создание и редактирование 3D проводок АО МОП;
- Создание и редактирование 3D проводок РО лестниц;
- Создание и редактирование 3D проводок РО лифтовых шахт;
- Создание и редактирование электрических цепей. Проверка созданных систем.
Моделирование систем ЭОМ автостоянки и тех. помещений стилобата. Работа со смежными разделами
- Подключение файла ОВ;
- Моделирование кабельных лотков (часть 1);
- Моделирование кабельных лотков (часть 2);
- Моделирование кабельных лотков (часть 3);
- Проверка на пересечения;
- Расстановка креплений для кабельных лотков (часть 1);
- Расстановка креплений для кабельных лотков (часть 2);
- Выдача заданий на отверстия;
- Принципы настройки электрических соединителей;
- Базовые механики получения заданий. Обычное копирование объектов, создание цепей для оборудования ОВ;
- Базовые механики получения заданий. Отслеживание изменений в связанном файле;
- Продвинутые механики получения заданий. Пакетное копирование объектов, создание цепей для оборудования ОВ;
- Расстановка осветительных приборов и создание 2D проводок при помощи ЭУ;
- Создание и редактирование электрических цепей. Проверка созданных систем;
- Подключение ВРУ-0.
Молниезащита и заземление
- Моделирование полосы заземления;
- Расчет контура заземления. Моделирование вертикальных заземлителей;
- Моделирование молниеприемной сетки и мачт на кровле;
- Моделирование вертикальных токоотводов и подключение к контуру заземления.
Оформление документации
- Понятия "Листы" и "Видовые экраны";
- Создание "Титульного листа" и "Обложки", сведения о проекте;
- Подготовка ведомостей чертежей и ссылочных документов;
- Подготовка общей текстовой части;
- Настройка типов шрифтов;
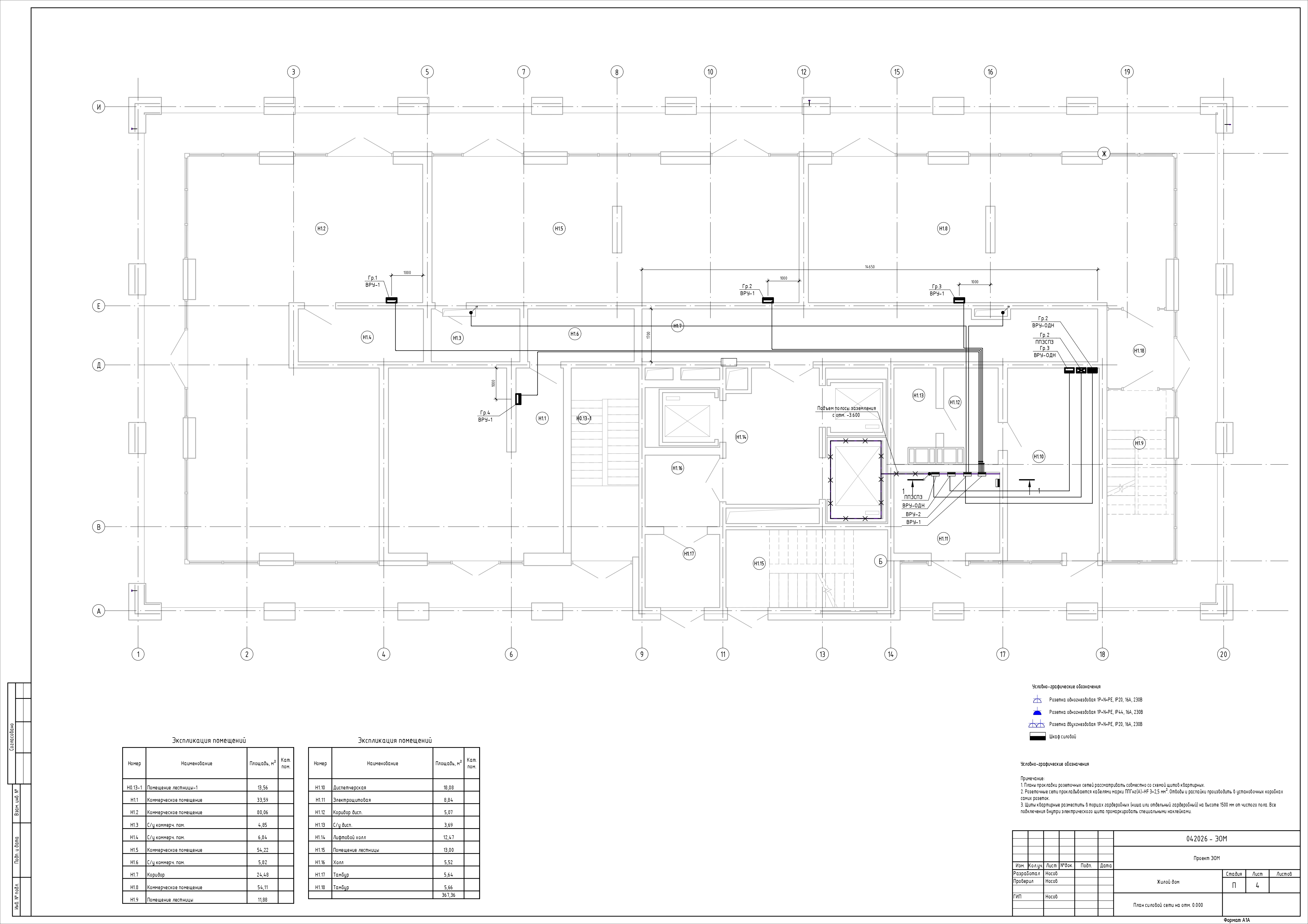
- Подготовка планов ЭМ ком. помещений 1-го этажа. Настройка видимости. Создание шаблона вида;
- Подготовка планов ЭМ ком. помещений 1-го этажа. Маркировка объектов;
- Подготовка планов ЭО ком. помещений 1-го этажа. Настройка видимости. Создание шаблона вида;
- Подготовка планов ЭО ком. помещений 1-го этажа. Маркировка объектов;
- Подготовка таблицы осветительных приборов;
- Подготовка разрезов;
- Подготовка легенды условных обозначений;
- Создание и компоновка листов;
- Подготовка планов и листов ЭО и ЭМ для типового этажа жилой части здания;
- Подготовка планов и листов ЭО и ЭМ для подвала. Зависимые виды;
- Промежуточный итог. Размешение разрезов;
- Подготовка листа с планом контура заземления;
- Подготовка листа с расчетом контура заземления и схемой;
- Подготовка кабельного журнала;
- Подготовка схемы уравнивания потенциалов. Работа с DWG;
- Подготовка модели для работы плагина Tesla BIM;
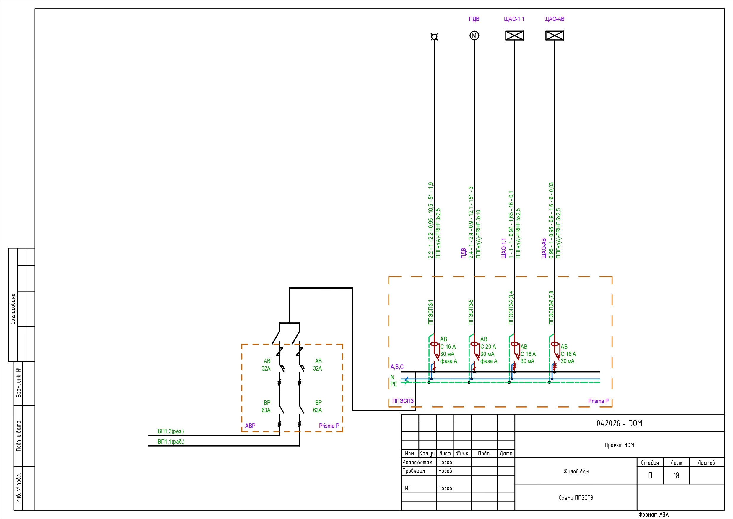
- Подготовка принципиальной схемы квартирного щита;
- Подготовка принципиальной схемы этажного щита;
- Подготовка принципиальной схемы ВРУ;
- Подготовка принципиальной схемы ГРЩ;
- Теория подготовки спецификаций;
- Проверка параметров объектов в модели;
- Обработка системных семейств;
- Подготовка спецификации оборудования;
- Подготовка спецификаций от Tesla BIM;
- Подготовка спецификации оборудования для Revit 2021.
Печать проекта
- Подготовка листов;
- Печать проекта в PDF;
- Экспорт проекта в DWG;
- Работа с DWF.
Совместная работа над одним файлом
- Введение в совместную работу.
Заключение
- Общая информация о BIM. Что нужно знать проектировщику.








